- UID
- 15458
- 好友
注册时间2008-10-6
威望值 点
最后登录1970-1-1
激情值 点
积分3090
认证分 分
齿轮币 枚
回帖0
|

楼主 |
发表于 2013-3-28 12:48
|
显示全部楼层
xflh 发表于 2013-3-27 22:44
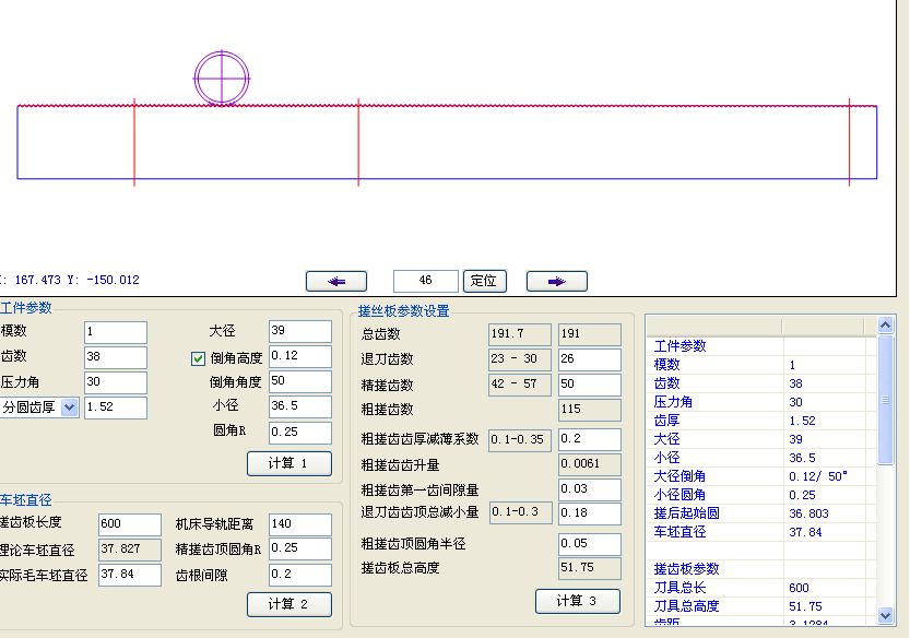
刀写的非常好。因为没有程序,所以只能依你发的图片提点个人见解。粗搓齿厚及齿升量可以不要。因为你的粗搓 ...
谢谢参与交流!
1.关于第一点:"粗搓齿厚及齿升量可以不要"
粗搓齿数与及齿升量是程序计算出来的,用灰色文本框显示,即只能看,不能输入的,显示齿升量是为了输入第一齿的间隙量时提供参考用,你的软件叫压入量,我参考了,改为间隙量,主要是考虑搓齿板的制造精度和通用性.对于M1以下的小工件,600长的搓齿板已足够长了,如果采用压入量0.05,则换另一种工件,有可能压入量达到0.1以上,太大了.因此采用间隙量,很保险及通用性强.
2.关于"退刀总减量及退刀齿数可以是一个常数"
网上人两篇搓齿板相关的文章:
一篇是退刀齿数=0.6-0.8的工件齿数,另一篇是12齿且退刀量0.3,都没有说出道理来,我认为不同的工件,都采用12-0.3是不好的,因此程序是让自已凭经验输入.
1.花键搓齿板设计http://wenku.baidu.com/view/2bd5ced33186bceb19e8bb10.html
2.冷搓小模数渐开线花键轴齿板的设计http://www.doc88.com/p-170809381413.html
3.关于粗搓部份可以不倒角
很有道理.虚心接受
|
|